- Obecnie brak na stanie
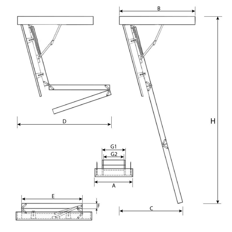
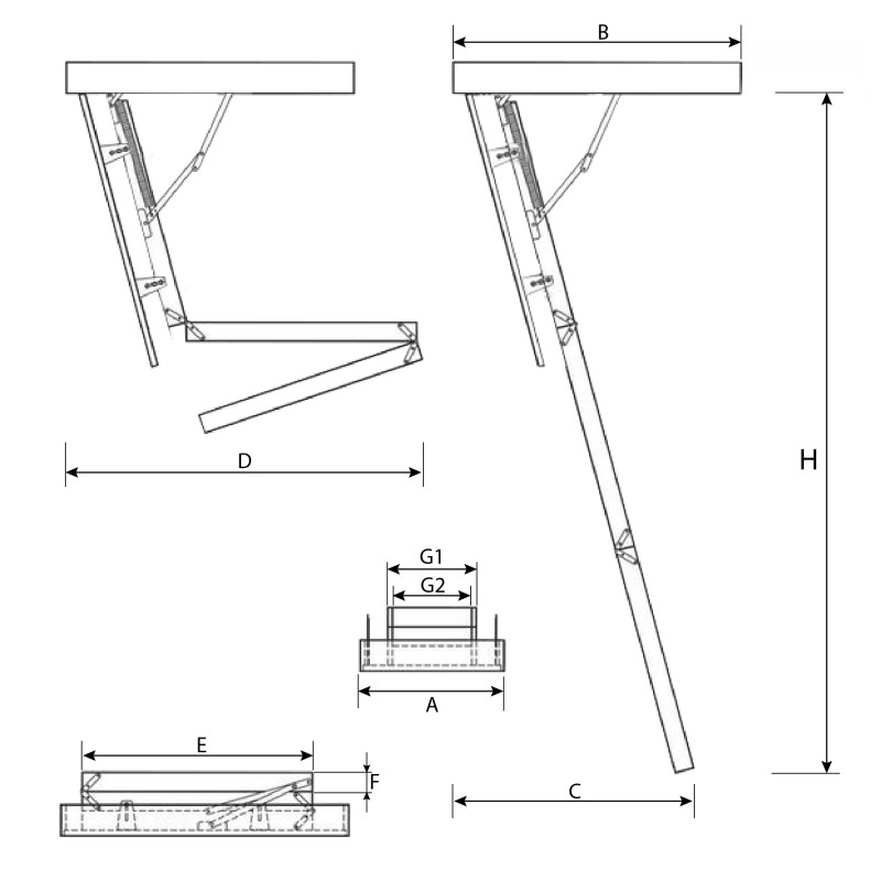
Schody strychowe 4STEP: GREENLINE 120x60 z klapą o grubości 35mm.
Jesteśmy producentem - dysponujemy szeroką gamą rozmiarów, a także modeli o różnej izolacji termicznej.
5 lat gwarancji. Maksymalne obciążenie schodów 150 kg.

