Schody strychowe 4STEP: NORDIC 120x80 z klapą o grubości 87mm
Jesteśmy producentem - dysponujemy szeroką gamą rozmiarów, a także modeli o różnej izolacji termicznej.
5 lat gwarancji. Maksymalne obciążenie schodów 150 kg.
Jesteśmy producentem - dysponujemy szeroką gamą rozmiarów, a także modeli o różnej izolacji termicznej.
5 lat gwarancji. Maksymalne obciążenie schodów 150 kg.
Schody strychowe są idealnym rozwiązaniem do każdego pomieszczenia, nawet eleganckiego salonu, gdyż nieużywane skrywają się pod zamkniętą w suficie klapą. Kiedy zachodzi taka potrzeba, bez trudu można je sprawnie i bezawaryjnie rozłożyć. Estetyczny wygląd i wysokie parametry funkcjonalne sprawiają, iż schody strychowe marki 4STEP są atrakcyjną propozycją dla wymagających użytkowników.
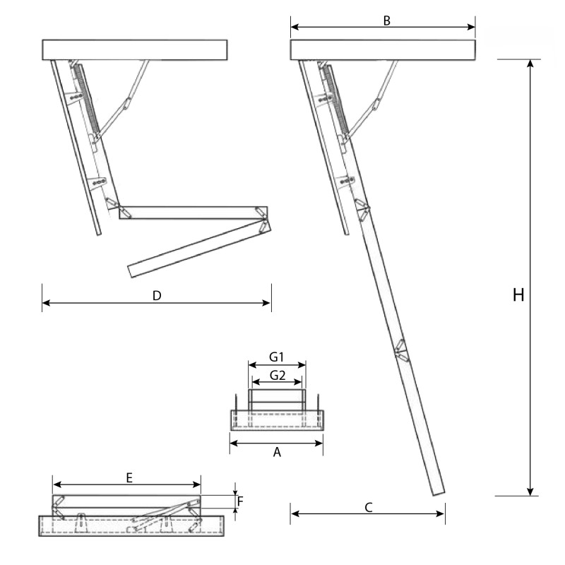
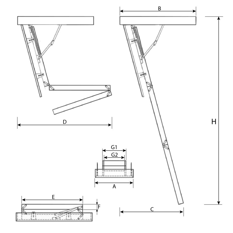
Szerokość: 80 cm
Długość: 120 cm
Grubość klapy: 87 mm
Przenikalność termiczna: 0,44 W/m2K
Do kondygnacji o wysokości do 280 cm.
W zestawie znajduje się pręt do otwierania o długości 75 cm.
Uszczelka została zaprojektowana, aby zapewnić jeszcze lepszą izolację termiczną i akustyczną.
Zapewnia zatrzymanie ciepła w pomieszczeniu, zmniejszenie straty energii i poprawę efektywności energetycznej.
Uszczelka do samodzielnego montażu.
W zestawie ze schodami nie ma wkrętów i kołków, których możesz potrzebować do ich montażu. Otwór montażowy do schodów strychowych musi być minimum 1 cm większy niż rozmiar skrzyni. Wykorzystując zestaw montażowy 4Step otwór musi mieć min. 2 cm więcej przy założeniu, że przekątne są równe.
Schody należy dostosować do danej wysokości pomieszczenia poprzez przycięcie drabinki. W instrukcji znajdziesz szczegółowe informacje jak to zrobić.
Szerokość: 80 cm
Długość: 120 cm
Zabieg (po podłodze): 115 cm
Promień otwarcia: 153 cm
Wysokość kondygnacji: do 280 cm
Długość segmentu: 96 cm
Szerokość belki policzkowej: 8 cm
Szerokość drabiny: 37 cm
Długość stopni: 32 cm
Grubość stopnia: 2,6 cm
Szerokość stopnia: 8 cm
Grubość skrzyni montażowej: 2 cm
4STEP: NORDIC
Schody strychowe są idealnym rozwiązaniem do każdego pomieszczenia, nawet eleganckiego salonu, gdyż nieużywane skrywają się pod zamkniętą w suficie klapą.
Kiedy zachodzi taka potrzeba, bez trudu można je sprawnie i bezawaryjnie rozłożyć.
Eleganckie i funkcjonalne schody 4STEP: NORDIC dostępne są w wersji trzy lub cztero segmentowej (w zależności od wymiarów).
Wyposażone w ocieplaną klapę zamykającą są doskonałym rozwiązaniem również w pomieszczeniach nieocieplanych.
Dokładamy wszelkich starań by zakupione przedmioty dotarły do Państwa jak najszybciej, i co najważniejsze, by dotarły w całości.
Do pakowania wykorzystujemy folię, karton oraz płytę ochronną i styropian.
Jest dla nas oczywiste, że oczekujecie Państwo produktu pełnowartościowego i tak Państwu dostarczymy.
W zestawie otrzymują Państwo kompletne schody (skrzynia, klapa z zamkiem, drabina, okucia) wraz z prętem do otwierania zamka.
Szukasz modelu o innych parametrach? Zapraszamy do zapoznania się z naszą bogatą ofertą schodów strychowych.
Przenikalność termiczna - jest to współczynnik który wskazuje wielkość straty ciepła spowodowaną różnicą temperatur wewnątrz i zewnątrz pomieszczenia dlatego:
Nasze schody strychowe zapewniają gwarancję ciepła i komfortu. Odpowiednia budowa zapewnia doskonałą izolację termiczną, sprawiając tym samym, że oferowane przez nas schody strychowe to najlepsze rozwiązanie dla wszystkich klientów, którym zależy na oddzieleniu nieocieplonego poddasza od ogrzewanych pomieszczeń w domu. I to przy zachowaniu estetyki wnętrza! Posiadamy bogatą ofertę schodów z różnymi współczynnikami przenikalności termicznej (W/m2K), dzięki czemu z łatwością dopasujesz nasze schody strychowe do swoich potrzeb.
\
Bezpieczeństwo:
Lista ostrzeżeń dotyczących bezpieczeństwa schodów strychowych oparta o wymagania Rozporządzenia (UE) 2023/988 w sprawie ogólnego bezpieczeństwa produktów (GPSR):
Upewnij się, że schody są prawidłowo zamocowane i zabezpieczone przed użyciem. Sprawdź stan techniczny schodów, w tym stabilność i sprawność mechanizmów. Nie przekraczaj dopuszczalnego obciążenia schodów.
Używaj schodów tylko na stabilnym i równym podłożu. Zabezpiecz obszar wokół schodów przed dostępem osób trzecich podczas ich użytkowania.
Zachowaj ostrożność podczas wchodzenia i schodzenia, zwłaszcza w obuwiu o śliskiej podeszwie.
Ryzyko urazów: Podczas składania i rozkładania schodów, uważaj, aby nie przytrzasnąć palców lub innych części ciała. Noś odpowiednie obuwie ochronne podczas korzystania ze schodów.
Montaż i konserwacja powinny być wykonywane zgodnie z instrukcją producenta. Regularnie sprawdzaj stan schodów i w razie potrzeby wymieniaj zużyte lub uszkodzone elementy.
Nie używaj schodów, jeśli zauważysz jakiekolwiek uszkodzenia lub nieprawidłowości w ich działaniu.
| Maksymalna waga użytkownika / maksymalne obciążenie. | 150 kg |
| Surowiec wykonania | Drewno świerkowe |
| Materiał wypełnienia klapy | Styropian |
| Do pomieszczeń o wysokości do | 280 cm |
| Grubość klapy schodów strychowych | 87 mm |
| Grubość skrzyni w schodach strychowych | 20 mm |
| Wysokość skrzyni w schodach strychowych | 14 cm |
| Materiał wykonania - schody strychowe | Skrzynia - świerk - 20mm x 140mm, płyta HDF (3mm); drabina - świerk - 27mm x 80mm |
| Kolor klapy schodów strychowych | Obustronnie biała, ocieplona klapa |
| Poręcz do schodów strychowych | W zestawie |
| Waga | 35,15 kg |
| Gwarancja | 5 lat |
| Zabezpieczenie do transportu | Karton wielowarstwowy + folia stretch |
| Współczynnik przenikania ciepła przez klapę. | 0,44 W/m2K |
| Osoba odpowiedzialna | 4iQ Group Sp. z o. o., ul. Ludwika Mierosławskiego 6, 14-200 Iława, tel.+48 89 674 92 57, kontakt@4iQ.com.pl |